Centre for Sufficiency Economy and Agricultural Learning | Institution
​
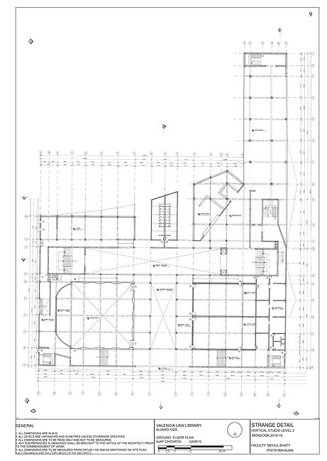
Location: Valencia, Spain to Ahmedabad, India
Professor: Mehul Bhatt and Ipsita Mahajan
Term: Monsoon 2018
Skills Used: Hand-drafting, Model making, Sketching, Photoshop and Illustrator
​
The project presented here is an unbuilt design by the renowned architect Alvaro Siza, serving as the main project for the semester, with the site relocated to Ahmedabad. The project necessitates a detailed exploration of design elements based on the conceptual ideas and drawings provided by the architect, in terms of:
​
-
Program
-
Architect's philosophy
-
Design considerations
-
Siting and orientation with respect to the site
-
Climatic considerations
-
Selection of materials and structural resolutions
​
.jpg)
.jpg)
.jpg)
.jpg)
.jpg)
.jpg)
.jpg)
.jpg)
.jpg)
.jpg)
.jpg)
.jpg)
.jpg)
.jpg)
.jpg)
.jpg)
.jpg)
.jpg)